Szent Kristóf római katolikus óvoda

Törökszentmiklós
Tervkategória
Oktatási intézmények
Megvalósulási szint
Megépült

Építész/architect: Rudolf Mihály, Orliczki Gábor 
Építész munkatárs/co-architect: Bögös András, Dávd-Iván Edit,  Györkefalvi Lilla, Klubertné Fehér Judit, Lipták Zoltán,  Molnár Katalin, Ragyina Noémi, Szamosi Endre, Vékony Gábor 
Helyszín/location: Törökszentmiklós 
Tervezés/planning: 2017-19

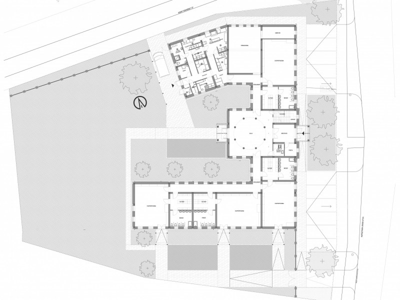
Törökszentmiklós szívében, a régi, középkori palánkvár helyén épült 120 éve a kéttornyos, téglás templom Nagy Virgil építész, műegyetemi tanár tervei alapján. Vele szemben már megvolt a Pánthy leánynevelő intézet kétszintes, klasszicizáló épülete, míg a rangos neobarokk földszint és emeletes plébánia csak az 1920-as években épült. Akkor a nyugati oldalon egy földszintes fiúiskola állt. Ez utóbbi évtizedek óta használaton kívül volt, így bontásra érett. Helyére került egy középrizalitos, itt kétszintes, új, aulás óvoda.  A régi intézet - immár általános iskolaként - a ’60-as, ’70-es években két ütemben, L alakban, lapostetős, kétszintes szárnnyal bővült déli irányban. Ezt a szárnyat tervünk magastetővel látta el. Nyugati oldalára új, földszintes főzőkonyhát terveztünk.  A templomkert északi oldalát egy hatalmas, négy méter magas, kónuszosodó, íves támfal határolja. Ezt a - „mezopotámiai, ősi” hangulatú, százhúsz éves, felületén szétfagyott - téglaobjektet a megyei építésfelügyelet rekonstrukciós kötelezvénnyel látta el félve annak statikai állapotától. Tervünk külső fagyálló téglaköpenyezéssel, támpillérekkel, vasbeton magokkal és belső, 100 méter hosszú, íves vasbeton kéregfallal biztosította a támfal állékonyságát és a régi-új látványt. A jó műszaki állapotban lévő templom, a felújított támfal, a plébániaépület, az új óvoda, illetve a felújított kollégium épülete az Ipolyi Arnold térhez mára méltó egységet képez. (RM)

Videó
47.1785091701785, 20.402003761522593